産品中心/PRODUCT主頁 > 産品中心 > 垂直振動螺旋輸送機

垂直振動螺旋輸送機

發表時間:2019-04-15 13:19    浏覽次數:

垂直螺旋輸送機主要用于垂直或大傾角輸送粉狀及顆粒物料,采用7.5kw-11kw大功率電機,輸送效率高,輸送高度可達6米

一、垂直螺旋輸送機産品概述:

垂直螺旋輸送機

垂直螺旋輸送機可将粉狀或顆粒狀物料從低位垂直輸送到高位,垂直高度可達8米,非常适合處理從自由流動到輕微遲緩的幹燥到半流體材料,垂直螺旋輸送機的強制進料采用迂回進料方式。這種形式的進料口與垂直螺旋輸送機機殼呈90°連接,适用于流動性較差的物料。在驅動裝置的布置上,一般有兩種布置方式:頂部驅動,适用于輸送高度低的場合,占地面積小;底部驅動,适用于輸送高度高的場合,占地很大。

二、垂直螺旋輸送機産品特點:

垂直螺旋輸送機特點

1、垂直或大傾角輸送物料,占地面積小,安裝維修方便。

2、大功率驅動裝置,垂直輸送高度可達6米。

3、強迫進料采用迂回進料型式,對于流動性差的物料也可均勻輸送,不會卡料。

4、分頂部驅動和底座驅動兩種布置型式,頂部驅動适用于輸送高度低的場合,占地面積小,底部驅動适用于輸送高的場合。

5、出料端設有清掃裝置,整機噪聲低、适應性強,進出料口位置布置靈活。

6、密封性好、外殼采用無縫鋼管制作,端部采用法蘭互相連接成一體,剛性好。

三、垂直螺旋輸送機工作原理:

垂直螺旋輸送機的工作原理

垂直螺旋輸送機由水平進料螺旋和垂直螺旋組成,從料倉或料鬥或上遊進料裝置進料。當螺旋以角速度ω旋轉時,螺旋面上的物料顆粒在離心力的作用下向殼壁移動,從而使作用于殼壁的壓力增加,亦即對殼壁産生較大的摩擦力。當此摩擦力大于物料顆粒與螺旋面之間的摩擦力以及由物料顆粒自重引起的沿螺旋面下滑的分力時,物料顆粒與螺旋面發生滑動并沿相反方向的螺旋形軌迹上升,從而完成垂直輸送。

四、垂直螺旋輸送機技術參數:

螺旋直徑(mm) 螺旋轉速(r/min) 輸送量(m³/n) 輸送高度(m) 在線咨詢
KLS200 200 350 2.5-15
KLS250 250 300
KLS300 315 2808

選型說明:①垂直螺旋輸送機由水平進料螺旋和垂直提升螺旋組成,可無級變速控制流量大小。

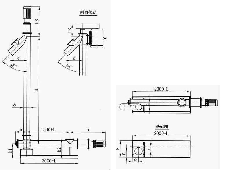
②垂直提升螺旋的傳動有直聯傳動和側向傳動兩種形式,側向傳動用于高度受限制的場合。

③垂直螺旋的出料口可360°任意旋轉布置。

五、垂直螺旋輸送機結構尺寸:

垂直螺旋輸送機結構圖

六、垂直螺旋輸送機客戶案例:

客戶現場

七、垂直螺旋輸送機的安裝:

垂直式螺旋輸送器上部有軸承支承,大多數采用單列圓錐滾子軸承兩個,安裝此軸承時,不可裝反,以免出現問題。

單列圓錐滾子軸承與向心推力球軸承相似,但承載能力更大,内外圈可分離,間隙容易調整。常用于斜齒輪軸、蝸輪減速器軸、機床主軸等。圓錐滾子軸承主要适用于承受以徑向載荷爲主的徑向和軸向聯合載荷,而大錐角圓錐滾子軸承可以用于承受軸向載荷爲主的徑軸向聯合載荷。此種軸承爲分離型軸承,其内圈(含圓錐滾子和保持架)和外圓可以分别安裝。在安裝和使用過程中可以調整軸承的徑向遊隙和軸向遊隙,也可以預過盈安裝.

單列圓錐滾子軸承3000型,此種軸承能夠限制軸或外殼一個方向的軸向位移。承受一個方向的軸向載荷。在徑向載荷作用下會産生附加軸向力,因此,一般在軸的兩個支承中,軸承的外圈和内圈的同名端面相對安裝。如單獨使用,其外加軸向力必須大于附加軸向力。

垂直式螺旋輸送機上部兩單列圓錐滾子軸承在安裝時,要注意,内圈在上面安裝垂直小錐面向上,在下面安裝垂直小錐面向下,兩單列錐滾子軸承相對安裝,這樣就可以支承住實體螺旋面不向下位移,保證生産的正常運轉。

八、垂直螺旋輸送機的使用與維護:

垂直螺旋輸送機的工作條件較惡劣,各個軸承都處于粉塵包圍之中,導熱條件不好,因此在這樣的工作條件下合理操作、保養尤爲重要,故要求如下:

螺旋機應無負荷起動,待起動正常後向進口投料。

給料時應均勻限額,給料量要合适以免使機器過載。

停車前,應停止給料,使機殼内物料輸送完後方可停止。

輸送物料内不得混入堅硬大塊,避免螺旋卡死損壞輸送機。

在使用中應檢查各部件的聯結禁锢件是否松動,動力是否發熱,聲音是否正常,一旦有異常,立即停車糾正。

調速電機起動、運行、停止。可以全壓起動亦可降壓起動,電動機起動後合上控制箱電源開關,逐漸調節速度旋鈕,增加激磁電流,離合器轉速逐漸加至需要運行轉速。停車時把調速旋紐調到零位,再停止拖動電機。

相關文章:
垂直螺旋輸送機與普通螺旋輸送機相比有什麽優勢
無軸螺旋輸送機的安全操作方法 2015-07-06
重慶U型LS250螺旋輸送機通過鴻泰物流已發貨 2015-07-06
螺旋輸送機的吊軸承爲最易磨損件需注意保養 2015-07-06
螺旋輸送機葉片會損壞的原因分析 2015-07-06
LS型螺旋輸送機在輸送過程中解決物料升溫變粘的 2015-07-06