

TD系列鬥式提升機是一種國家标準的鬥式提升機,它是采用的膠帶傳動來提升物料,主要用于垂直輸送松散密度ρ<1.5t/m³的粉狀、粒狀、小塊狀無磨逐性、小磨琢性物料,采用普通橡膠帶被輸送的物料溫度不超過60℃,采夾鋼絲膠帶可達80℃,而采用耐熱橡膠帶物料溫度一般不超過150℃。
大漢TD型鬥式提升機備有四種料鬥:Q型(淺鬥)、H型(弧底鬥)、ZD型(中深鬥)以及SD型(深鬥)。不同型号、不同料鬥的td鬥式提升機輸送量是不同的,可以滿足用戶的更多要求。

TD鬥式提升機主要用于食品、化工、尖刺、冶金、煤炭等行業,适用于垂直輸送粉末、顆粒、小塊狀或磨琢性較小的散裝物料,如糧食、煤、水泥、碎礦石等物料。

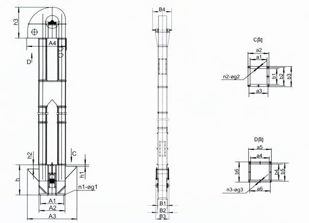
TD鬥式提升機主要由上、下鏈輪,皮帶,挖鬥,絲杆,進出料口,箱體,電機、減速機等組成。

1、每小時可輸送物料500立方,提升高度可達40米;
2、采用流入式喂料,減少了部件與物料之間的摩擦力,減少了對物料的磨損;
3、全密封輸送,能夠減少粉塵外洩帶來的環境污染;
4、運行平穩,無障礙時間可達2萬小時。
TD型鬥式提升機的牽引件爲橡膠帶,料鬥以一定的間隔固定在橡膠帶上,橡膠帶分别繞過提升機頭部和底部的滾筒,構成具有上升有載分支和下降無載分支的閉合環形系統;工作時,布置在提升機頭部的驅動裝置通過頭部滾筒将動力傳給橡膠帶和料鬥,物料從提升機底部的進料口進入料鬥,料鬥将物料提升至頭部的卸料口,在離心力和重力的共同作用下,料鬥中的物料經卸料口卸出。

輸送産品
您正在浏覽的是:新鄉市大漢振動機械有限公司生産的螺旋輸送機設備,如果您對螺旋輸送機型号規格、價格感興趣的話,可以随時撥打電話和我們聯系!