新鄉大漢螺旋輸送機廠家歡迎您的到來,我們專注螺旋輸送機十二年!期待與您的一次合作!
垂直螺旋輸送機

垂直螺旋輸送機

立即獲取報價0373-268 2333

廠家直銷

現貨報價

規格齊全

結實耐用


 

  一、垂直螺旋輸送機産品概述:

  垂直振動螺旋輸送機旋轉軸上焊的螺旋葉片,葉片的面型根據輸送垂直螺旋輸送機物料的不同有實體面型、帶式面型、葉片面型等型式。垂直螺旋輸送機的螺旋軸在物料運動方向的終端有止推軸承以随物料給螺旋的軸向反力,在機長較長時,應加中間吊挂軸承。主要有LSY、LS、GX、WLS、LC型系列螺旋輸送機;MS、MC、MZ、MSF、MSD型系列埋刮闆輸送機,FU型系列鏈式輸送機;TD、TH、NE、型等系列;DSZ、YSJ型粉塵加濕攪拌機系列;HXF型星形卸灰閥(XF物料旋閥)、DLSF系列電動雙層聯鎖閥、ZF型閘闆閥等閥門系列;卸船設備以及污水污泥處理設備;不鏽鋼螺旋輸送機等。

 

  二、垂直螺旋輸送機産品特點:

  1.承載能力大、安全可靠。

  2.适應性強、安裝維修方便、壽命長。

  3.整機體積小、轉速高、确保快速均勻輸送。

  4.出料端設有清掃裝置,整機噪聲低、适應性強,進出料口位置布置靈活。

  5.密封性好、外殼采用無縫鋼管制作,端部采用法蘭互相連接成一體,剛性好。
 

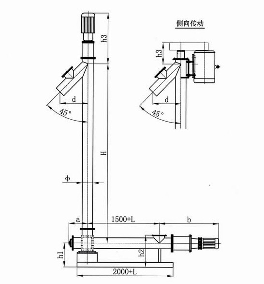
  三、垂直螺旋輸送機工作原理:

  垂直螺旋輸送機利用旋轉的螺旋将被輸送的物料沿固定的機殼内推移而進行輸送工作,頭部及尾部軸承移至殼體外,吊軸承采用滑動軸承設有防塵密封裝置,軸瓦一般采用粉末冶金,輸送水泥采用毛氈軸瓦,吊軸和螺旋軸采用滑塊連接。

 

  四、垂直螺旋輸送機技術參數:

  

  五、垂直螺旋輸送機的安裝:

 

  垂直式螺旋輸送器上部有軸承支承,大多數采用單列圓錐滾子軸承兩個,安裝此軸承時,不可裝反,以免出現問題。

  單列圓錐滾子軸承與向心推力球軸承相似,但承載能力更大,内外圈可分離,間隙容易調整。常用于斜齒輪軸、蝸輪減速器軸、機床主軸等。圓錐滾子軸承主要适用于承受以徑向載荷爲主的徑向和軸向聯合載荷,而大錐角圓錐滾子軸承可以用于承受軸向載荷爲主的徑軸向聯合載荷。此種軸承爲分離型軸承,其内圈(含圓錐滾子和保持架)和外圓可以分别安裝。在安裝和使用過程中可以調整軸承的徑向遊隙和軸向遊隙,也可以預過盈安裝.

  單列圓錐滾子軸承3000型,此種軸承能夠限制軸或外殼一個方向的軸向位移。承受一個方向的軸向載荷。在徑向載荷作用下會産生附加軸向力,因此,一般在軸的兩個支承中,軸承的外圈和内圈的同名端面相對安裝。如單獨使用,其外加軸向力必須大于附加軸向力。

  垂直式螺旋輸送機上部兩單列圓錐滾子軸承在安裝時,要注意,内圈在上面安裝垂直小錐面向上,在下面安裝垂直小錐面向下,兩單列錐滾子軸承相對安裝,這樣就可以支承住實體螺旋面不向下位移,保證生産的正常運轉。

 

  六、垂直螺旋輸送機的使用與維護:

 

  垂直螺旋輸送機的工作條件較惡劣,各個軸承都處于粉塵包圍之中,導熱條件不好,因此在這樣的工作條件下合理操作、保養尤爲重要,故要求如下:

  螺旋機應無負荷起動,待起動正常後向進口投料。

  給料時應均勻限額,給料量要合适以免使機器過載。

  停車前,應停止給料,使機殼内物料輸送完後方可停止。

  輸送物料内不得混入堅硬大塊,避免螺旋卡死損壞輸送機。

  在使用中應檢查各部件的聯結禁锢件是否松動,動力是否發熱,聲音是否正常,一旦有異常,立即停車糾正。

  調速電機起動、運行、停止。可以全壓起動亦可降壓起動,電動機起動後合上控制箱電源開關,逐漸調節速度旋鈕,增加激磁電流,離合器轉速逐漸加至需要運行轉速。停車時把調速旋紐調到零位,再停止拖動電機。
 

聯系我們

您正在浏覽的是:新鄉市大漢振動機械有限公司生産的螺旋輸送機設備,如果您對螺旋輸送機型号規格、價格感興趣的話,可以随時撥打電話和我們聯系!

相關知識

在線詢價

獲取報價單24小時銷售熱線:0373-268 2333
在線微信顧問
在線詢價在線詢價
嘿,我來幫您!